TODAY VILA MARIANA BUILDING
Development located in one of São Paulo's most prime districts, focused on mobility and complete infrastructure. The project sits on a 1,200m² lot and features a single 15-story tower with a total of 216 units (185 residential apartments, 30 Flats/Non-Residential units, and 1 retail store). It offers full amenities, including a swimming pool, coworking space, and fitness center.
Location: Rua Dr. Tomás Alves, 110 – Vila Mariana, São Paulo, Brazil
Developer Website: https://canopus.com.br/todayvilamariana
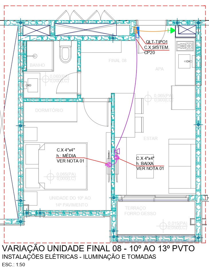
My Contribution: As a designer at Duall, I developed the hydraulic designs (sizing of cold water, hot water, and sewage systems) and electrical designs (focusing on lighting and power outlet distribution) for the residential units, flats, and common areas of the building.













